$175,000 for Sale
4967 n mid bay county line road, midland, MI 48642
| Virtual Tour | Map View | Aerial View | Street View |
Property Description
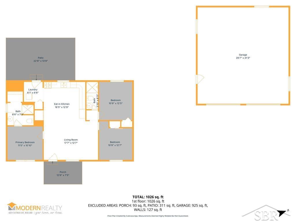
Meet me on Mid Bay Co Line - Welcome home to this delightful 3-bedroom, 2-bathroom ranch home! This well-maintained gem offers 980 square feet of thoughtfully designed living space, perfect for those seeking comfortable living without the burden of excess. Step inside and you'll immediately appreciate the open-concept layout that seamlessly connects the kitchen, living room, and dining room—creating an inviting space ideal for both everyday living and entertaining guests. The beautifully remodeled kitchen, updated in 2020, showcases fresh cabinetry, modern appliances, and stylish flooring. This home has been lovingly upgraded with attention to both form and function. Recent improvements include a roof in 2019, and in 2021 new gutters, a high-efficiency water heater, whole house water filtration system, and water softener. The newly encapsulated crawlspace provides added peace of mind and energy efficiency. Outside, the generous 1 acre lot offers room to breathe, garden, or simply enjoy the great outdoors. The massive concrete patio off the rear of the home creates an ideal setting for summer barbecues and evening relaxation. An oversized 2.5 car garage built in 2015 provides ample storage and workspace, while the new driveway stone and sidewalk enhance curb appeal. At this attractive price point, you're getting exceptional value with updates that translate to years of maintenance-free living. This is the kind of opportunity that doesn't linger on the market. Schedule your private showing today and discover why this charming property deserves to be your next chapter!
General Information
City: mills twp
Post Office: midland
Schools: midland public schools
County: Midland
Subdivision: n/a
Acres: 1.07
Lot Dimensions: 200x233
Bedrooms:3
Bathrooms:2 (2 full, 0 half)
House Size: 960 sq.ft.
Acreage: 1.07 est.
Year Built: 1900
Property Type: Single Family
Style: Ranch
Features & Room Sizes
Bedroom 1: 12x11
Bedroom 2 : 11x13
Bedroom 3: 11x13
Kitchen: 13x16
Livingroom: 13x18
Garage: 2
Garage Description: Detached Garage, Electric in Garage, Gar Door Opener
Exterior: Vinyl Siding
Exterior Misc: Patio
Bedroom 2 : 11x13
Bedroom 3: 11x13
Kitchen: 13x16
Livingroom: 13x18
Garage: 2
Garage Description: Detached Garage, Electric in Garage, Gar Door Opener
Exterior: Vinyl Siding
Exterior Misc: Patio
Basement: No
Foundation : Crawl
Appliances: Dishwasher, Microwave, Range/Oven, Refrigerator, Water Softener - Owned
Cooling: Ceiling Fan(s),Central A/C
Heating: Forced Air
Fuel: LP/Propane Gas
Waste: Septic
Watersource: Private Well
Foundation : Crawl
Appliances: Dishwasher, Microwave, Range/Oven, Refrigerator, Water Softener - Owned
Cooling: Ceiling Fan(s),Central A/C
Heating: Forced Air
Fuel: LP/Propane Gas
Waste: Septic
Watersource: Private Well
Tax, Fees & Legal
Est. Summer Taxes: $438
Est. Winter Taxes: $947
Est. Winter Taxes: $947
Map

Provided through IDX via MiRealSource. Courtesy of MiRealSource Shareholder. Copyright MiRealSource.
The information published and disseminated by MiRealSource is communicated verbatim, without change by MiRealSource, as filed with MiRealSource by its members. The accuracy of all information, regardless of source, is not guaranteed or warranted. All information should be independently verified.
Copyright 2026 MiRealSource. All rights reserved. The information provided hereby constitutes proprietary information of MiRealSource, Inc. and its shareholders, affiliates and licensees and may not be reproduced or transmitted in any form or by any means, electronic or mechanical, including photocopy, recording, scanning or any information storage and retrieval system, without written permission from MiRealSource, Inc. Listing By: Jennafer Tipton of Modern Realty, Phone: 989-486-9770
(810) 691-3503
Call Eric McBride for more information about this property.
Ask me about this property
|
Listings Presented by:
Eric McBride
Call:
(810) 691-3503 Office: (810) 691-3503 |
This Single-Family Home located at
is currently for sale. This property is listed for $175,000.
4967 n mid bay county line road
has 3 bedrooms, approximately 960 square feet.
This home is in the midland public schools school district and has a lot size of 200x233 with 1.07 acres and was built in 1900.
4967 n mid bay county line road is in midland and in ZIP Code 48642 area.
4967 n mid bay county line road, midland MI, 48642
For Sale | $175,000
| 3 Bed, 2 Bath | 960 Sq Ft
MLS ID sbrmi50197087
If you have any question about this property or any others, please don't hesitate to contact me.





